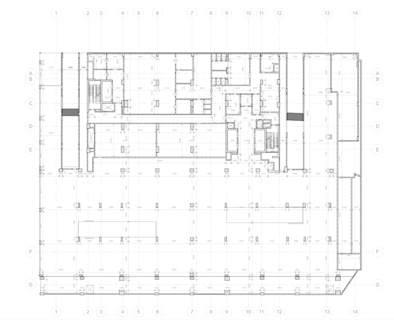
Point Cloud Scan to BIM for a Hotel Project in KSA
We provided Scan to BIM Services by accurately converting Point Cloud Scan Data provided by the client into a 3D BIM Model.
Services Provided: Scan to BIM Services | Architectural BIM Services
Building Type: Hospitality
Project Location: JEDDah, kSA
Area: Approx. 5,400 sq. m.
Software: Revit, ReCap
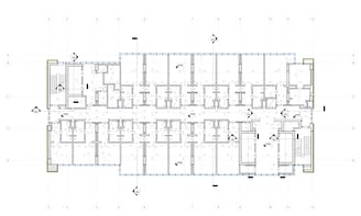
Project Gallery








Our Trusted Partners





The project slider on my website looks amazing! It really showcases the quality of my work.
Satisfied Customer
I am so happy with how the project images are displayed on my website. It's perfect!
Happy Client
