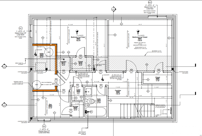
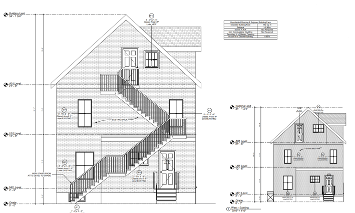
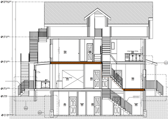
We provided Scan to BIM Services by accurately converting Point Cloud Scan Data provided by the client into a 3D BIM Model With 2D drafting and 3D Architectural modeling services based Building code
Services Provided: Scan to BIM Services | Architectural BIM Services |
Architectural Drafting Services
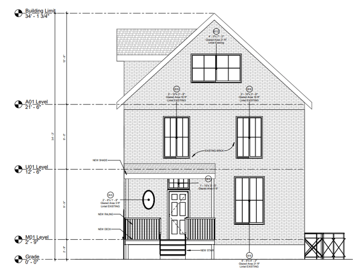
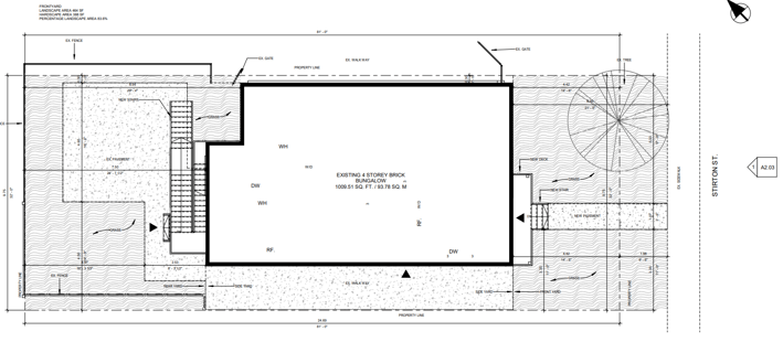
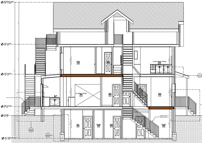
Building Type: Residential
Project Location: Hamilton, Canada
Area: Approx. 1,500 sq. ft.
Software: Revit, ReCap
Project Gallery












Our Trusted Partners





The project slider on my website looks amazing! It really showcases the quality of my work.
Satisfied Customer
I am so happy with how the project images are displayed on my website. It's perfect!
Happy Client
